今回のオーナー様は、「1人美容室を開業したい」「女性のお客様が多いので、女性に好まれる内装にしたい」とのこと。

「1人美容室」なので、オーナー様の雰囲気とお店の雰囲気や空気感が一致することが大切です。まずは、「好きなもの」「好きな雰囲気」「得意なスタイル」「お客様の雰囲気」など、綿密にヒアリングしていきます。
目次
BACKGROUND

今回のご依頼は、神奈川県横須賀市で、15年美容師をされているM様。
多くのお客様に愛されていて、集客には全く問題ないものの、美容室の内装に関してはイメージをお持ちではなかったため、まっさらな状態からヒアリング、イメージを膨らませていくところから進めさせていただきました。
CONCEPT
スウェットスタイルが映える

「海外のラフなスウェットスタイル」がお好きという、オーナー様。そのスタイルがとてもお似合いだったため、「その姿が最も映える背景」をデザインしました。
完全プライベートサロン

完全にマンツーマンのプライベートサロンということで、非日常感を打ち出し、リラックスして過ごせる空間づくりを行いました。
収納率の設計

美容室の一般的な収納率は10~15%ですが、一人で経営していくことを考慮し、効率的に余裕を持って運営できるよう、収納率を21.5%にしました。
POINT
プライベートサロンとしてのラグジュアリー感を最大に
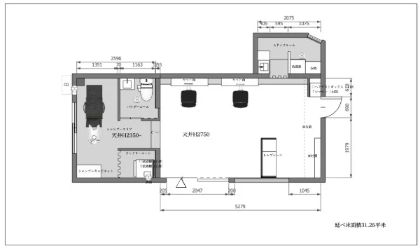
10坪(セット面2面)の美容室
今回は約10坪(32平米)、セット面2面の美容室。ご家族やお友達と来ることを想定しており、プライベートサロンとして経営する計画です。
こだわりの色合わせ
タイル・壁紙・照明器具・木塗装・スタイリングチェア、全ての色合わせにこだわりました。
- 壁紙:LW-105(リリカラ)
- タイル:IM-100P1/NY2H(リクシル)
- タイル目地:AMJ-P02(名古屋モザイク)
- スタイリングチェア:DAN(ビューティガレージ)

照明計画で、ラグジュアリー感を最大に

「路面店」は「ウォールウォッシャー」照明計画
今回の物件は、国道沿いの路面店。外から見たときに、入りやすい印象にするため、内部を明るく見せることが大切と考え、照明計画にはこだわっています。
「ウォールウォッシャータイプ」の照明計画を行っています。
※ウォールウォッシャー照明計画:壁を照らしていくことで、空間を広く、リッチに見せる照明計画のことです。
照明器具の数も、41個と、この規模の美容室としては、かなり多めに配置しています。そうすることで、眩しくなく、且つ外と同等の照度を保つことができ、入り易いお店が作られています。

角度変更OK・調光可能なセット面のダウンライト
セット面1つにつき、4箇所、お客様の頭部を照らす、角度調整OK、調光OKの、ダウンライトを設置しています。
- 照明器具:OD301205(オーデリック)
- ライト:278CN(オーデリック)
セット面の世界観を引き継ぐ、シャンプーエリア

壁紙は色味は同じだけど、アクセントに
セット面エリアから、シャンプーエリアを見ると、色味は同じの、アクセントウォール(タイル調壁紙)が少し見えることで、空間に奥行きを出しました。
- アクセントウォール:LL-6178(リリカラ)
- 塗装調壁紙:LW-93(リリカラ)
効率性・作業性
シャンプーキャビネットは1人美容室にしては大きめのものを採用。シャンプーキャビネット・ランドリールームは、3歩で移動でき、効率的な運営が可能です。
- シャンプーキャビネット:フラットシャンプーキャビネット(マテリ)
- シャンプー台:RUBINO Ⅱ【BASIC-R】(ビューティーガレージ)

半円ミラー×ころんとしたボールライトが可愛いトイレ

「狭く、暗めにしたい」とのご要望
美容室の内装の世界観を引き継ぎつつ、狭くて暗くて可愛いトイレをデザインしました。
半円ミラーと、コロンとしたボールライト、四角い洗面台、内装と統一感のある壁紙、のバランスにこだわりました。
- 洗面台:エレガンススクエア35(ミラタップ)
- 壁紙:LW-114(リリカラ)
- 半円ミラー:オーダーメイド
コストカットのため、便器とドアは移設
現スタッフルームに設置されていた、トイレとトイレのドアはそのまま移設して使用することで、予算を抑え、その分、ミラーの形や、使い易い手洗いにこだわりました。
ゆとりをもった収納計画

収納率21%と余裕の設計
一般的な美容室の収納率は10~15%程度。ただし、今回は非日常感・高級感のある美容室ですので、21%の収納率にしました。そうすることで、美容室で使用する全ての物を収納することができ、長く経営しても、「物が見えてしまい非日常感を損なう」ことなく、余裕を持った美容室経営ができます。
ヘアダストボックス
ロッカー下には、ヘアダストボックスを設置し、営業中は髪の毛を掃き入れ、常に美容室内を綺麗に保てるようにしています。
使い易いスタッフルーム
スタッフルーム内の壁は、全て稼働棚を設置。また、スタッフルームへの入り口は、バーチカルブライインドを採用。バトンで開け閉め・角度調整できるタイプを採用し、汚れにも配慮しました。
- バーチカルブライインド:ルノプレーンTF-8015(TOSO)
タオルを持って3歩で行けるランドリールーム
1人美容室の経営は、全て1人で運営していくため、運営の負荷を少しでも減らすことが長期的な安定経営につながります。
タオルキャビネットと洗濯機・乾燥機は3歩で行き来できます。乾燥機も、ガスタイプで乾燥性能は安定。
「使用済タオル→洗濯→乾燥→収納」のサイクルを、最短で回すことができ、1日3分だとしても、月にしたら1時間節約できるので、その分集客やブランディングに時間を充てることができます。

シンプルで可愛い外観
ファサードは、外壁の塗装のみ。もともとアールの可愛い外観だったため、それをそのまま使用しました。
また、中の照度を上げて、外から入り易い雰囲気を作りを意識しました。


ステンレス製の看板
入り口には、看板を設置しました。ステンレスで製作し、中から店名を、ライトで照らしました。
シンプルだけど、可愛くて目立って、ブランド価値も担保できる、そんな看板です。
スタジオすむとこでは、お客様1人1人の個性を生かした、完全オーダーメイドデザインを行なっています。
一般的なデザインでは、満足できないお客様にも、寄り添って、こだわりのデザインを実現します。
是非、こちらのお問い合わせフォームより、ご連絡ください。
