【2026年最新】美容室10坪・15坪・20坪の内装費用相場と理想の間取り図事例

「10坪の小さな美容室、内装にいくらかかる?」「15坪ならセット面は何面作れる?」 美容室の開業において、物件の広さと内装費用のバランスは、最も頭を悩ませるポイントの一つです。
昨今の資材高騰により、数年前の相場観では資金計画が立ち行かなくなるケースも増えています。本記事では、これまで多くのサロンを手掛けてきたプロの視点から、10坪・15坪・20坪それぞれの最新費用相場と、収益性を最大化する理想の間取り図を詳しく解説します。
目次
そもそも「内装費」とは?どこまでの費用を含むのか

ネットやSNSで「内装費◯◯万円」という言葉を見かけますが、実は業者やサイトによってその定義はバラバラです。比較する際に混乱しないよう、まずは一般的な範囲を整理しておきましょう。
基本的に「内装費」とは、**設計と施工にかかる「材料費」と「人件費」**を指します。
- 含まれないもの: 不動産関連費用(土地代、テナント料、保証金)、
- 注意が必要なもの: シャンプー台・ボイラーの器具、セット椅子、(造作ではない)レジカウンター、(造作ではない)セット面、施主支給品、テナントまでの配管
特にシャンプー台などは、内装工事費に含まれていると思い込んで予算を組むと、後から「プラス100万円以上」の出費に驚くことになります。見積もりを見る際は、必ず「設備費が含まれているか」を確認しましょう。
美容室の内装費用相場|坪単価はいくらで見積もるべき?

2026年現在の美容室内装の坪単価は、60万〜100万円が一般的な目安です。
- スタンダードプラン: 坪60万〜80万円(シンプルかつ機能的)
- こだわりデザインプラン: 坪80万〜110万円(高級素材やオーダー什器を使用)
※10坪前後の小規模物件の場合、キッチンやトイレなどの水回り設備費が分散されないため、坪単価が割高になる傾向があります。
【坪数別】理想の間取り図とセット面・シャンプー台の数

- 10坪の場合: セット面2席 / シャンプー台1〜2席。オーナー1人で全てをコントロールする、最も効率的な「お一人様サロン」に最適です。
- 15坪の場合: セット面2〜4席 / シャンプー台2席。スタッフを1名雇用し、少しゆとりを持たせた「上質なプライベート空間」が作れる広さです。
- 20坪の場合: セット面4〜6席 / シャンプー台2〜3席。バックヤードや待合を広く取れるため、高単価なヘッドスパや着付けなどの多機能な展開も可能になります。
詳細は下記に実例を、実際の図面付きで説明します。
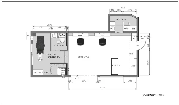
10坪の美容室:一人オーナー・プライベートサロン向け


©️スタジオすむとこ設計・施工「海外セレブがスウェットスタイルで訪れる美容室」10坪
- 内装費用目安: 600万〜900万円
- キャパシティ: セット面 2〜3面 / シャンプー台 1〜2台
- 間取りのポイント: 「10坪 美容室」で最も大切なのは、デッドスペースの徹底排除です。待ち合いスペースを最小限にし、鏡に大きめのものを採用することで視覚的な広さを演出します。動線がシンプルになるため、一人オーナーでも効率よく接客可能です。
15坪の美容室:アシスタントを雇う・育てる前提の広さ


- 内装費用目安: 900万〜1,300万円
- キャパシティ: セット面 3〜5面 / シャンプー台 2台
- 間取りのポイント: スタッフを1〜2名雇用するのに最適な広さです。中央に収納を兼ねたカウンターを配置したり、バックヤードを適切に区切ることで、プロフェッショナルな作業動線を確保できます。
20坪の美容室:複数雇用にチャレンジ/余裕のある空間で高級ライン

- 内装費用目安: 1,200万〜1,800万円
- キャパシティ: セット面 4~6面/ シャンプー台 2~3台
- 間取りのポイント: 個室ブースやヘッドスパ専用スペースなど、「高単価メニュー」のための空間作りが可能になります。お客様同士の距離を保ち、高級感のあるレイアウトを実現できます。
なぜ、狭い店舗ほど「坪単価」が高くなるのか?
「10坪なら20坪の半分の費用で済むはず」と考えがちですが、実はそうではありません。店舗が小さくなるほど、1坪あたりの単価(坪単価)は高くなる傾向があります。
これは、ものづくりの特性によるものです。**「お弁当を1人分作るのも、2人分作るのも、買い出しや調理の手間(人件費)は大きく変わらない」**のと似ています。
内装工事でも、10坪でも20坪でも「電気・水道の引き込み作業」や「職人の手配」「現場監督の打ち合わせ回数」などの基本コストは同じようにかかります。そのため、面積が小さいほど、その基本コストが1坪あたりに重くのしかかり、単価を押し上げる要因となるのです。
美容室の「間取り図」作成時にプロが必ずチェックする3ポイント

理想のレイアウトを安く実現するために、以下の3点は物件契約前に確認しましょう。
- 給排水の立ち上がり位置 シャンプー台を排水口から離すと、床を高く上げる工事が必要になり、コストが跳ね上がります。
- 電気容量の増設可否 ドライヤーを複数台使う美容室では、物件全体の電気容量が足りない場合、多額の増設費用がかかることがあります。
- 保健所の立ち入り検査基準 消毒スペースの広さや、床・壁の材質など、自治体のルールをクリアしなければ営業許可が下りません。
デザインで費用はどう変わる?テイスト別のコスト目安

同じ坪数でも、選ぶスタイルによって材料費や工期(人件費)が変動します。
- ナチュラル・北欧スタイル(コスト:★☆☆) 既製品の家具や明るい色のクロスをメインに使用。比較的安価に温かみのある空間を作れます。
- インダストリアル・スケルトン(コスト:★★☆) 天井を抜くスタイル。安そうに見えますが、ダクトの塗装や配管を綺麗に整える工賃がかさむため、実は平均より高くなることも。
- 韓国風・ミニマルデザイン(コスト:★★★) 曲線(R壁)や継ぎ目のない左官仕上げ(モールテックス等)を多用します。職人の高度な技術と手間が必要なため、コストは上がりやすいですが、トレンド感は抜群です。
プロが教える!デザインを妥協しない節約術
- 外装は後回し: 居心地に直結する内装を優先。外装は看板などの最小限に留め、売上が上がってから作り込むのも賢い戦略です。予算内で「おしゃれ」を最大化するために
- 「目線1m」の法則: お客さまが座った時の目線(高さ1m〜1.5m)の壁面にだけ良い素材を使い、足元や天井付近は安価な素材でコストを削る。
- 1点豪華主義: レセプションカウンターだけは特注にし、他は既製品を活用する。視線を「店の顔」に誘導するテクニックです。
予算内で「おしゃれ」を最大化するために
費用相場が把握できたら、次は**「限られた予算でいかにおしゃれに見せるか」**というデザインの戦略を立てましょう。
「高い素材を使えばおしゃれになる」わけではありません。1点集中で予算をかける「フォーカルポイント」の作り方や、狭い店舗でも圧力がでないデザインのコツを以下の記事で詳しく解説しています。
後悔しないために!プロが教える「内装計画の落とし穴」

1. 席数を詰め込みすぎて「居心地」を損なう 売上のために席数を増やした結果、お客様の隣が近すぎてリラックスできず、リピート率を下げる失敗が多く見られます。通路幅は最低でも90cm〜120cm確保するのが黄金比です。
2. 安さだけで「住宅用」の設備を選んでしまう 家庭用の給湯器やエアコンは美容室の過酷な使用環境を想定していません。数年で故障し、結果的に業務用への買い替えで倍のコストがかかるケースがあります。
3. 「後出し」の追加工事で予算オーバー 工事が始まってからの変更は割高です。設計図の段階で、コンセントの位置からスタッフの動線まで、1日の流れをシミュレーションし尽くすことが最大のコストカットになります。
美容室の内装費用・坪数に関するよくある質問(FAQ)
Q:10坪以下の狭小物件でも美容室は開業できますか?
A:はい、可能です。 実際に5〜8坪でプライベートサロンを成功させている方も多いです。ただし、椅子の間隔など保健所の規定をクリアする必要があるため、プロによる事前の図面チェックが必須です。
Q:坪単価以外に必ずかかる費用はありますか?
A:設計デザイン料、什器・備品代、各種申請費用などが別途かかります。 総予算の7〜8割を内装工事費に、残りを備品や運転資金に充てるのが理想的な資金計画です。
Q:居抜き物件なら、どれくらい費用を抑えられますか?
A:スケルトン物件からの着工に比べ、30%〜50%ほど抑えられるケースがあります。 特にシャンプー台の配管がそのまま活かせる場合は大きな節約になりますが、老朽化による水漏れリスクなどには注意が必要です。
Q:狭いと坪単価が高くなるって本当?
A:仕上げる面積は少ないですが、配管などの最低限の工事は必要なため、単価はやや高くなります。
Q:15坪でスタッフ2人は回せますか?
A:セット面を2〜3席、シャンプー台2台でオペレーション可能です。
Q:10坪でスパや個室は作れますか?
A:完全個室は難しいですが、カーテンやパーテーションでの演出は可能です。
まとめ|理想のサロン作りは正確なシミュレーションから

「10坪だから安く済む」「20坪だから高い」と一概には言えません。大切なのは、あなたの目指すスタイルに対して、その広さが適切かどうかを見極めることです。
弊社、Studio.Sumutoco(スタジオすむとこ)では、物件探しから坪数に合わせた最適なレイアウト提案、コストカットの相談まで一貫してサポートしています。
- 「この広さで理想の席数は確保できる?」
- 「予算内でどこまでこだわりを実現できる?」
など、まずはお気軽に無料相談をご利用ください。

